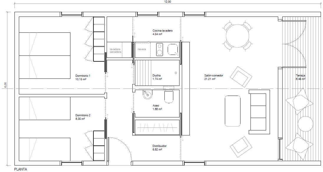
Descripción del Proyecto
Módulo EBO ubicado en Arnela, con diseño moderno y materiales sostenibles. Este proyecto forma parte del sistema modular EBO, destacando por su arquitectura contemporánea y construcción de alta calidad.
El módulo está diseñado para ofrecer máxima funcionalidad y confort, manteniendo un diseño que se integra perfectamente en el entorno natural de Arnela.
Especificaciones Técnicas
SISTEMA DE FORJADO DE CUBIERTA
Sistema formado de interior a exterior por:
- Tableros estructurales para utilización en ambiente húmedo OSB/3 de 22 mm por la cara inferior de los elementos estructurales.
- Elementos estructurales de madera laminada GL24 de 20×10 cm. Cada 60 cm tratados para clase de uso 2.
- Aislamiento de lana de roca de densidad 70kg/m3 rellenando los 16 cm. de espesor del espacio entre los elementos estructurales.
- Tablero OSB/3 de 22mm por la cara superior.
- Rastreles de conífera impregnable de 1.5×4 cm tratados en autoclave para clase de uso 4.
- Lámina transpirable.
- Rastreles de conífera impregnable de 5×3 cm tratados en autoclave para clase de uso 4.
- Chapa metálica de acero galvanizado, de 0,6 cm de espesor en perfil comercial galvanizado por ambas caras, fijada mecánicamente a los rastreles.
SISTEMA DE FORJADO DE SUELO
Sistema formado de interior a exterior por:
- Pavimento interior de tablero carrocero contrachapado fenólico de 15 mm., acabado superior de resina fenólica.
- Rastreles de conífera de 3×5 cm. generando una cámara que permitirá el paso transversal de instalaciones.
- Aislamiento de lana de roca de densidad 70 kg/m3 rellenado los 16 cm. de espesor del espacio entre los elementos estructurales.
- Elementos estructurales de madera laminada GL24 de 16×10 cm. cada 40 cm. tratada para clase de uso 2, soportada sobre enanos de acero galvanizado.
- Tableros estructurales para utilización en ambiente húmedo OSB/3 de 22 mm. por la cara inferior de los elementos estructurales.
ESTRUCTURA PORTANTE
Estructura portante de entramado de madera según el sistema de diafragma, formado de interior a exterior por:
- Tablero compacto de fibras de madera con acabado impregnado en resina melamínicas.
- Pies derechos de madera de conífera impregnable de 7×4 cm. cada 40 cm.
- Aislamiento de lana de roca de densidad 70 kg/m3 de 6 cm. de espesor ocupando el espacio entre montantes.
- Tableros estructurales para utilización en ambiente húmedo OSB/3 de 22 mm.
- Lámina transpirable por la cara exterior del tablero OSB estructural.
FACHADA TRANSVENTILADA
Fachada transventilada de madera de despiece vertical, formada de interior a exterior por:
- Rastreles verticales de madera de conífera tratada en autoclave de 4×1,5 cm. por cada 40 cm.
- Rastreles horizontales de madera de conífera tratada en autoclave de 3,5×3,5 cm. cada 50 cm.
- Lamas verticales exteriores de madera de conífera tratada en autoclave de 6×2 cm., con junta abierta de 8 mm. , fijadas mediante tirafondos desde la cara exterior.
TERRAZA EXTERIOR
Formada por:
- Estructura de madera laminada GL24 de 16×10 cm. cada 40 cm. de conífera impregnada tratada en profundidad con sales hidrosolubles para clase de uso 4, soportada sobre enanos de acero galvanizado.
- Tarima de madera de conífera impregnable de 6×2 cm., tratada en profundidad en autoclave clase de uso 4, fijada sobre elementos estructurales mediante tirafondos con junta abierta de 10 mm.








